

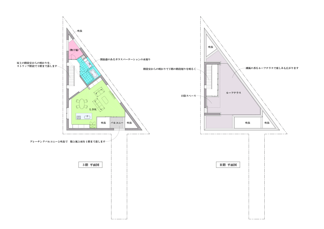
個人住宅や店舗等を設計する際には土地の形状が大きく影響します。 一般的には適度な四角形をした土地や間口が広い土地の形状が活用しやすいのは当然です。
昭和26年の国土調査法に基づき行われた地積調査や、その後各地で行われた土地区画整理事業などで 多くの土地が整形されましたが、まだまだ不整形な土地や段差土地や狭小土地といった「ハンデ土地」も多くあります。
一般的にはこれらの土地は評価も低く、流通ルートに乗らず放置されていることもあります。
しかしこれらの土地にも人間の顔と同じように「個性」があります。 私たちは、これらの「ハンデ土地」に語りかけ、個性を最大限に引き出すことによって 付加価値を高め、まだ見ぬ新オーナーに届けたいと考えています。
不整形な土地や狭小土地を所有しているが売却できなかったり、有効活用したい方、ぜひ私たちにご連絡ください。

協力設計士 一級建築士 井上郁生
Pleasure House 観音台
軸線をずらして、道路空間の抜けから谷間越えの遠景を望みます。カーポートのスライディングウォールを閉めて、ユーティリティテラスを半外空間の1階リビングにするなどの使い方も。
阿品台
プライベートを守りながら、空に開いて自然を取り入れます。日常から少し離れてリラックスできる生活を。ナタリーマリーナストリートで食事や買い物、宮島を望める海辺の散歩に気軽にお出かけ。
祇園
イオンモール広島祇園に隣接。
コンパクトシティライフをお望みの方に。
Pleasure House 東千田町
南東の隣地側のプライバシーを確保して、陽と風を取り入れます。
Pleasure House 南千田町
東面はパンチング折板張りとして、道路向かいの事務所ビルからの視線を遮り、プライバシーを確保しながら、明かりと風を取り入れます。
向洋
高台に位置、木々の間から海田湾への眺望が望めます。週末リゾートライフの雰囲気をお望みの方に。
仁保
市内への眺望を望みます。南側道路から2階へアプローチします。
東雲
再開発を終える新たな町での暮らしを。周囲に建物が建つことを考慮して、空方向に抜けを設け自然を取り入れて創る空間。